9 SUMMERHILL ROAD
MACCLESFIELD, PRESTBURY, CHESHIRE EAST SK10 4AH
£5,000,000
Property details
Tenure
FREEHOLD
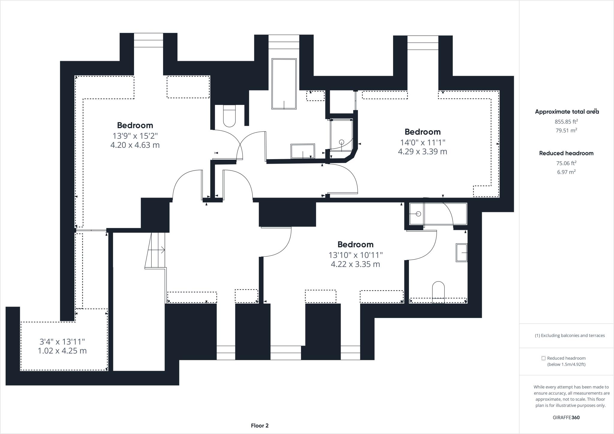
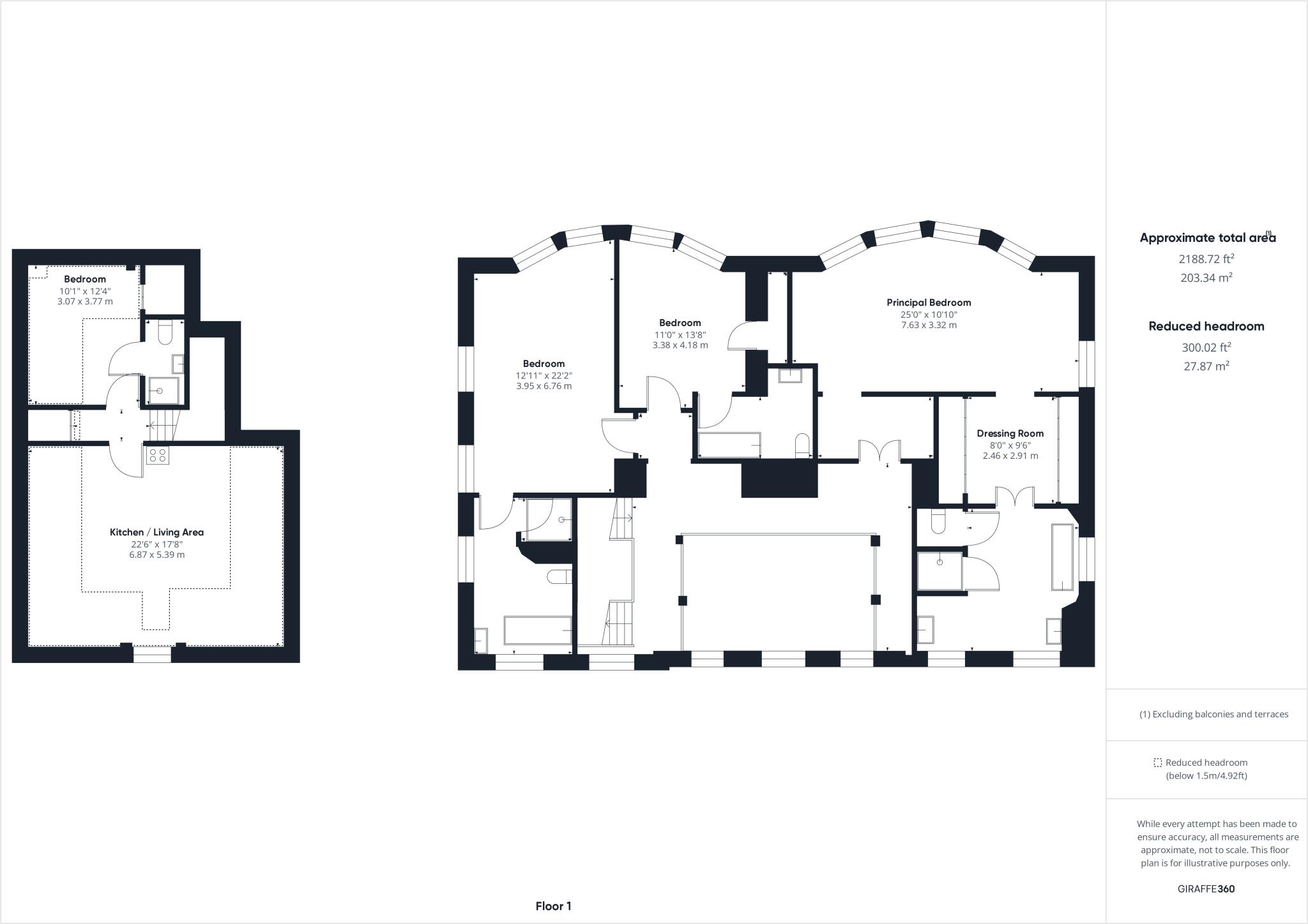
Floor area
671.0 m²
EPC rating
C
Year built
England and Wales: 2007 onwards
Last sold
£4,500,000 Aug 2022
Price per m²
£7,452/m²
Local average
£1,041,738 (+380%)
Deprivation
Decile 10 (32,574 of 33,755)
Key features
- Grand Detached Family Residence
- Seven Bedrooms & Six Bathrooms
- Accommodation Over Four Floors
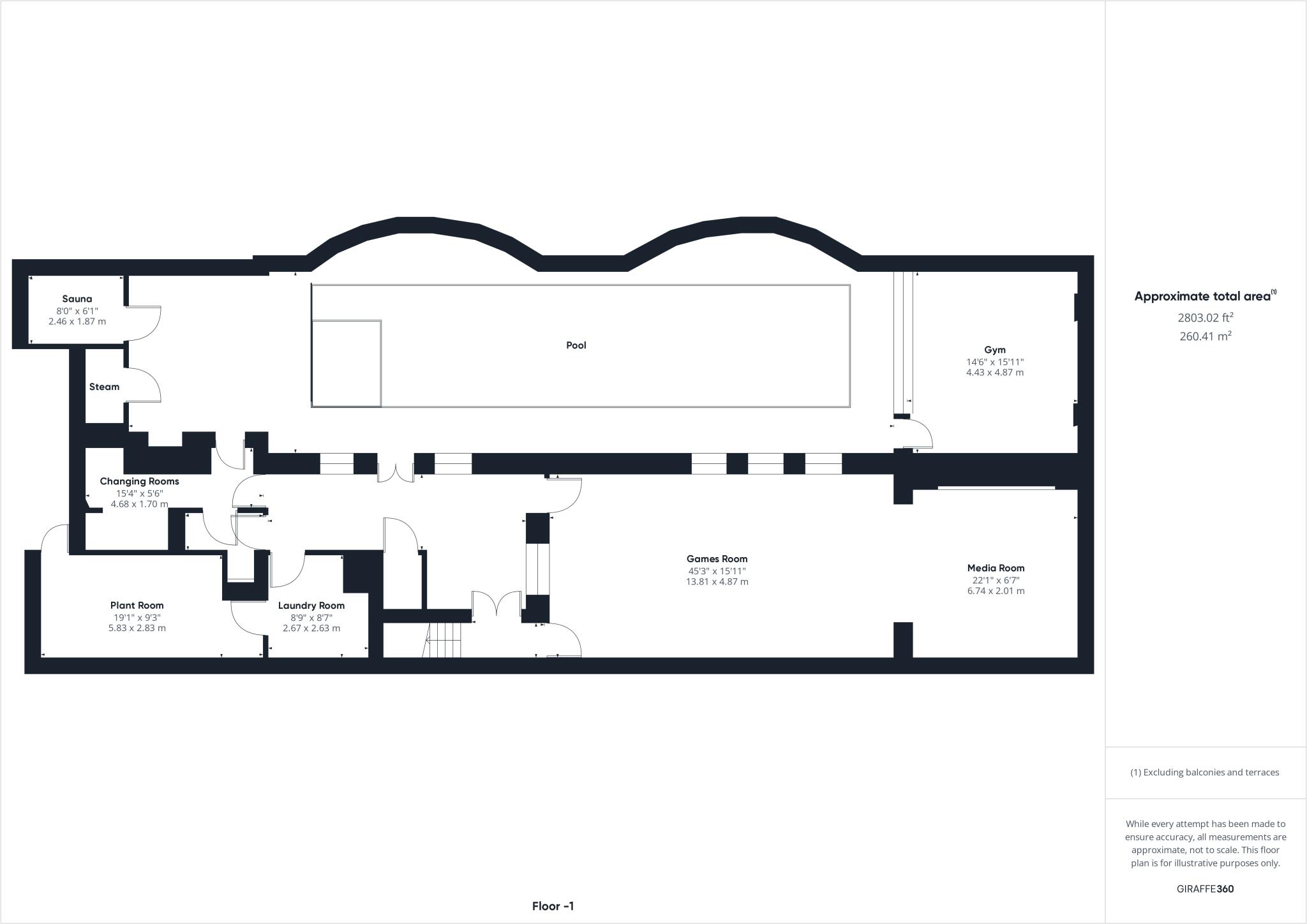
- Full Leisure Suite & Spa With Separate Gym
- Fabulous Games Room / Cinema Room & Bar
- Separate Self Contained Annex
- Immaculately Presented Throughout & Newly Fitted Tom Howley Kitchen
- Private Landscaped Gardens Approximately 3/4 Acre With South Facing Rear Aspect
- Walking Distance to Prestbury Village
- NO ON-GOING CHAIN!!
Additional details
- Heating
- Gas, Double glazing, Central, Open fire, Gas central, Underfloor heating, Under floor
- Parking
- Secure, Garage, Driveway, Off street, Gated, Private
- Garden
- Front garden, Patio, Private garden, Enclosed garden, Rear garden, Terrace, Back garden
Description
This property is an impressive and substantial family home offering elegant, with well-balanced accommodation arranged over four floors. The property combines classic architectural styling with generous proportions and period style features, creating a refined yet highly practical living environment suited to modern family life and entertaining on a grand scale whilst retaining a warm "homely" feel.
Approached via a private gated driveway, the house sits within approximately 3/4 of an acre with mature landscaped gardens and boasts a south facing rear aspect. The accommodation is centred around the impressive galleried landing and leading to a series of spacious reception rooms, all enjoying attractive outlooks over the grounds, alongside a large open plan kitchen and breakfast room that forms the heart of the home.
The upper floors provide an excellent principal bedroom suite, with dressing room and En-Suite bathroom complemented by several further bedroom suites and bathrooms, offering flexible living for both family and guests.
Situated on one of Prestbury's most desirable roads the property enjoys a prime Prestbury location, within easy reach of the village centre, highly regarded local schools, transport links, and the surrounding Cheshire countryside, while remaining convenient for Manchester and the North West's commercial centres.
A rare opportunity to acquire a landmark home in one of Cheshire's most exclusive residential settings.
Directions: SK10 4AH
Tenure: Freehold - Freehold
Viewings by appointment only via LY Property
Viewing is an absolute MUST!
Disclaimer:
These details do not constitute or form part of an offer or contract nor may they be regarded as representations. All dimensions or square footage are approximate for guidance only, their accuracy cannot be confirmed. Reference to appliances and / or services does not imply that they are necessarily in working order or fit for purpose or included in the sale. Buyers are advised to obtain verification from their solicitors as to the tenure of the property, as well as fixtures and fittings and where the property has been extended / converted as to planning approval and building regulations. All interested parties must themselves verify their accuracy.
Listed by
Cheshire
LY Property
Reference: 87486060
EPC Rating & Upgrade Cost
Current rating: C
Potential rating: B
Inspection date: 14/06/2016
Current heating cost: £2,550/year
Potential heating cost: £2,566/year
Est. upgrade cost to C: £6,645
Recommendations
- Low energy lighting for all fixed outlets (£145)
- Solar photovoltaic panels, 2.5 kWp (£5,000 - £8,000)
Flood risk
Zone: 1
Risk: Low
Job (default Low)
Price history
285% since 2006
| Event | Date | Price | % change |
|---|---|---|---|
| Listed for sale | — | £5,000,000 | +11.1% |
| Sold (Land Registry) | 10/08/2022 (3 years ago) | £4,500,000 | +221.4% |
| Sold (Land Registry) | 23/09/2008 (17 years ago) | £1,400,000 | +19.7% |
| Sold (Land Registry) | 28/07/2006 (19 years ago) | £1,170,000 | — |
Source: HM Land Registry Price Paid Data. Crown copyright.
Sold Comparables
Same street and nearby sales within 0.25 miles (last 5 years). Data from Land Registry Price Paid.
| Address | Price | Date | Type |
|---|---|---|---|
| Same street 10 SUMMERHILL ROAD, PRESTBURY, CHESHIRE EAST SK10 4AH | £2,280,000 | 12/02/2024 | Detached |
| Same street 6 SUMMERHILL ROAD, PRESTBURY, CHESHIRE EAST SK10 4AH | £2,310,000 | 29/09/2023 | Detached |
Street average: £2,295,000 (2 sales)
Rental Range
Estimated market rent for Cheshire East. Low = conservative, Realistic = average, Optimistic = best case.
Based on Local Authority from postcode lookup → Cheshire East.
LHA (30th percentile) floor for East Cheshire: £1,745/mo (Apr 2025 – Mar 2026)
Location
Nearby
Nearest stations, universities and amenities (distance from property).
| Type | Name | Distance |
|---|---|---|
| Bus stop | Upton Priory, Macclesfield Road / Lanes End Cottage | 0.2 miles |
| Shop | Co-op Food Stores | 0.7 miles |
| Shop | Martin's | 0.7 miles |
| Train station | Prestbury | 1.2 miles |
| Hospital | Macclesfield District General Hospital | 1.3 miles |
| Hospital | Rosemount Resource Centre | 1.3 miles |
| Train station | Macclesfield | 2.0 miles |
| University | University of Derby, Buxton | 10.0 miles |
| University | University of Manchester Fallowfield Campus | 11.7 miles |
Street-level crime
No incidents reported for this period. Data for this month may not be available yet from the source.
Within 1 mile during Jan 2026. Source: data.police.uk (England & Wales).
Schools nearby
Nearest open schools with Ofsted ratings (England). Closed schools are not shown. Data from Get Information about Schools and Ofsted.
| Name | Type | Distance | Ofsted |
|---|---|---|---|
| The King's School In Macclesfield | Other | 0.4 miles | — (No rating) |
| Upton Priory School | Primary | 0.4 miles | Good — 28 Jan 2015 |
| The Fallibroome Academy | Secondary | 0.6 miles | Good — 16 Feb 2023 |
| St Alban's Catholic Primary School, A Voluntary Academy | Primary | 0.9 miles | Outstanding — 26 Nov 2014 |
| Prestbury CofE Primary School | Primary | 1.0 miles | Good — 12 May 2020 |
Rental Comparables
Rental comparables data is not available for this property.