HILL HOUSE
WHITEBARN ROAD, ALDERLEY EDGE, ALDERLEY EDGE, CHESHIRE SK9 7AN
£4,500,000
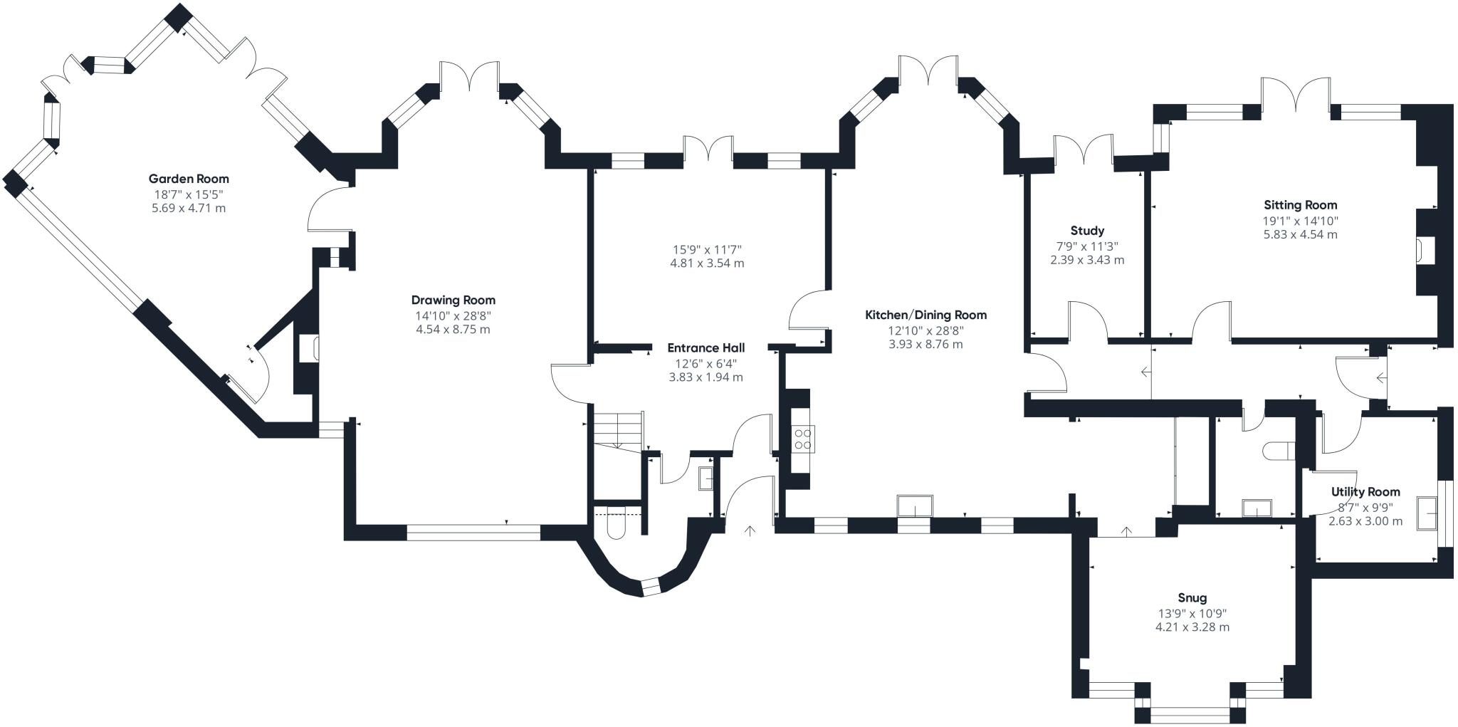
Rear Elevation Entrance Hall Grounds Kitchen/Dining Entrance Hall Kitchen Drawing Room Drawing Room Dining Room Sitting Room Sitting Room Garden Room Garden Room Garden Room Landing Principal Bedroom Principal Bedroom Principal Bedroom En Suite Dressing Room Bedroom En Suite Bedroom Bedroom Bedroom Bathroom Study Terrace View Rear Elevation Grounds Side Elevation Terrace & Grounds Front Elevation Garage Gym House and Grounds Drive Entrance Site Plan
/ 40
Property details
Tenure
FREEHOLD
Floor area
469.0 m²
Council tax band
H
EPC rating
D
Year built
England and Wales: 1930-1949
Last sold
£2,170,000 Dec 2005
Price per m²
£9,595/m²
Local average
£871,457 (+416.4%)
Deprivation
Decile 9 (28,188 of 33,755)
Key features
- IN ALL APPROXIMATELY 5,752 SQ FT
- SENSITIVELY RENOVATED WITH ATTENTION TO DETAIL
- FORMAL, MATURE & MAGNIFICENT GARDEN
- MODERN CLASSIC AESTHETIC
- PLANTATION-STYLE GARDEN ROOM
- FAR-REACHING VIEWS
- ELEVATED POSITION ON WHITEBARN ROAD
- CIRCA 3.7 ACRES
Additional details
- Electricity
- Mains supply
- Water
- Mains supply
- Sewerage
- Mains supply
- Heating
- Gas central
- Parking
- Garage, Driveway, Gated
- Garden
- Yes
- Listed property
- No
- Restrictions
- Yes
- Required access
- No
- Flooded in last 5 years
- No
Description
Arts & Crafts elegance meets modern comfort, with circa 3.7 acres of gardens and sweeping countryside views.
- Arts & Crafts architecture
- Modernised and extended 1930s house
- Immaculate presentation
- Six reception rooms
- Garden room with limestone floor
- Chesney gas fireplaces
- Five bedrooms, three with en suites
- Principal bedroom suite with dressing room and bathroom
- Light-filled, generous interiors
- Hetherington Newman cabinetry
- Smallbone kitchen with granite worksurfaces
- Circa 5,732 sq ft net internal floor area
- Renovated cellar
- Security gated entrance
- Large driveway with parking for multiple cars
- Double garage with first floor gym
- Landscaped gardens and paddock land
- In all circa 3.7 acres
- Desirable Whitebarn Road location
Listed by
Alderley Edge
Jackson-Stops & Staff
Reference: 162934865
EPC Rating & Upgrade Cost
Current rating: D
Potential rating: C
Inspection date: 13/05/2025
Current heating cost: £4,204/year
Potential heating cost: £2,885/year
Est. upgrade cost to C: £11,500
Recommendations
- Cavity wall insulation (£500 - £1,500)
- Floor insulation (suspended floor) (£800 - £1,200)
- Draught proofing (£80 - £120)
- Replace single glazed windows with low-E double glazed windows (£3,300 - £6,500)
- Solar photovoltaic panels, 2.5 kWp (£3,500 - £5,500)
Flood risk
Zone: 1
Risk: Low
Job (default Low)
Price history
| Event | Date | Price | % change |
|---|---|---|---|
| Listed for sale | — | £4,500,000 | — |
Source: HM Land Registry Price Paid Data. Crown copyright.
Sold Comparables
Same street and nearby sales within 0.25 miles (last 5 years). Data from Land Registry Price Paid.
| Address | Price | Date | Type |
|---|---|---|---|
| ROCKLANDS, WHITEBARN ROAD, CHESHIRE EAST SK9 7AW | £2,350,000 | 14/07/2025 | Detached |
Area average: £2,350,000 (1 sale)
Rental Range
Estimated market rent for Cheshire East. Low = conservative, Realistic = average, Optimistic = best case.
Based on Local Authority from postcode lookup → Cheshire East.
LHA (30th percentile) floor for West Pennine: £760/mo (Apr 2025 – Mar 2026)
Location
Address
Whitebarn Road
Nearby
Nearest stations, universities and amenities (distance from property).
| Type | Name | Distance |
|---|---|---|
| Bus stop | Alderley Edge, Congleton Road / Beechfield Road | 0.3 miles |
| Shop | Murphy's Barber Shop | 0.4 miles |
| Shop | Coggles | 0.4 miles |
| Train station | Alderley Edge | 0.7 miles |
| Hospital | Soss Moss Hospital | 1.6 miles |
| Hospital | The Wilmslow Hospital | 2.1 miles |
| Train station | Wilmslow | 2.3 miles |
| University | University of Manchester Fallowfield Campus | 10.4 miles |
| University | Fallowfield Reception and Richmond Amenities Building | 10.4 miles |
Street-level crime
No incidents reported for this period. Data for this month may not be available yet from the source.
Within 1 mile during Jan 2026. Source: data.police.uk (England & Wales).
Schools nearby
Nearest open schools with Ofsted ratings (England). Closed schools are not shown. Data from Get Information about Schools and Ofsted.
| Name | Type | Distance | Ofsted |
|---|---|---|---|
| Nether Alderley Primary School | Primary | 0.6 miles | Good — 1 May 2012 |
| The Ryleys School | Other | 0.7 miles | — (No rating) |
| Alderley Edge Community Primary School | Primary | 0.8 miles | — (Inspected (no overall grade)) |
| Alderley Edge School for Girls | Other | 0.8 miles | — (No rating) |
| Lindow Community Primary School | Primary | 1.6 miles | Good — 11 Mar 2014 |
Rental Comparables
Rental comparables data is not available for this property.